Bifamiliare in vendita

Anguillara Sabazia, Via dei Giunchi - Ponton Dell'Elce
€ 240.000
7 locali 7 locali
195 Mq 195 Mq
2 bagni 2 bagni

Bifamiliare in vendita

Anguillara Sabazia, Via dei Giunchi - Ponton Dell'Elce

Descrizione annuncio

Ponton dell'Elce a 8 min dal centro di Anguillara Sabazia e a 15 min dalla SS1 Aurelia

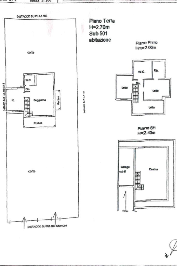
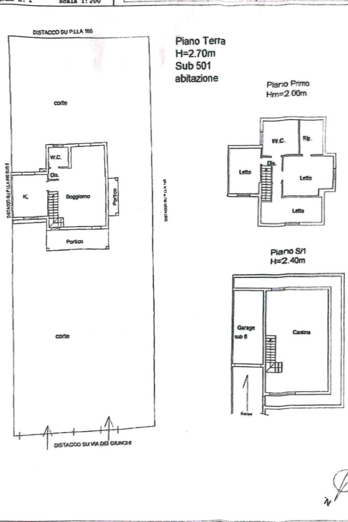
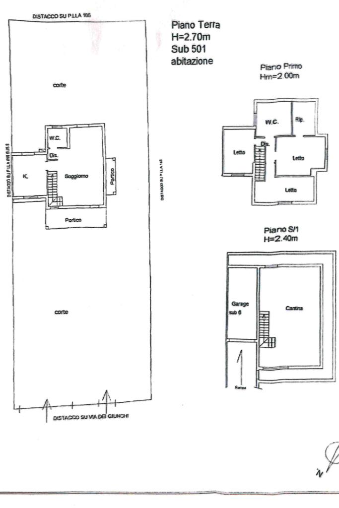
Proponiamo in vendita una villa bifamiliare disposta su tre livelli, circondata da un giardino privato di circa 400 mq, ideale per chi cerca spazio, comfort e indipendenza.

Al piano terra l’ingresso conduce a un soggiorno ampio e molto luminoso, valorizzato dall’accesso tramite portico chiuso con vetrate. Sullo stesso livello troviamo un bagno con doccia e una cucina abitabile di circa 20 mq, con porta finestra che permette l’uscita diretta sul retro del giardino.

Il piano primo è dedicato alla zona notte e ospita tre camere da letto, di cui una dotata di cabina armadio, oltre a un bagno finestrato completo di vasca idromassaggio e doccia, pensato per il massimo comfort.

Il piano seminterrato, attualmente allo stato grezzo, offre ampie possibilità di personalizzazione in base alle proprie esigenze (taverna, palestra, deposito, ecc.).

Caratteristiche e dotazioni:
• Struttura in cemento armato
Intercapedine per l’isolamento dall’umidità del piano seminterrato
• Impianto fotovoltaico con 12 pannelli per un totale di 3 kW
Pannelli solari termici per la produzione di acqua calda sanitaria
Bombolone GPL per il sevizio culinario
Caldaia a condensazione per il riscaldamento degli ambienti
• Posto auto scoperto interno alla proprietà

Soluzione ideale per famiglie che desiderano una casa spaziosa, efficiente e personalizzabile.

Mostra tutto

Nelle vicinanze

Trasporto pubblico Trasporto pubblico
Casal S. Angelo
Casal S. Angelo
960 m
Casal S. Angelo/Tragliatella
Casal S. Angelo/Tragliatella
960 m
Farmacia Farmacia
Farmacia Bevilacqua
230 m
Supermercati Supermercati
Alimentari
1,9 Km
Ristoranti Ristoranti
La Fienatora
2,6 Km
Mostra tutto

Caratteristiche

Rif.:
61157447
Piano:
Su più livelli di 3
Totale piani:
3
Box:
1
Posti auto:
1
Camere da letto:
3
Mostra tutto
Prezzo Prezzo
€ 240.000
Rata mutuo Rata mutuo
€ 1.131 / mese
Spese annue Spese annue
€ 0
Proponi il tuo prezzoProponi il tuo prezzo

Classe Energetica

F
F
F
F
F
F
F
F
F
EP globale non rinnovabile:
188.00 kW h/m² anno
EP globale rinnovabile:
188.00 kW h/m² anno
EP invernale del fabbricato:
EP estiva del fabbricato:
Anno di costruzione:
2004
Riscaldamento:
Autonomo
Tipo impianto:
A radiatori
Tipo alimentazione:
GPL

Ti interessa visionare l'immobile?

Fissa un appuntamento  Fissa un appuntamento

Richiedi informazioni

Clicca su Leggi per aprire l'informativa
* Questi campi sono obbligatori

Calcola il tuo mutuo

Semplice e senza impegno
Anticipo

( % )
Mutuo

( % )

pochi semplici passi

inserisci i tuoi dati
Questionario completato
Grazie per aver richiesto un appuntamento senza impegno con un nostro Consulente del Credito e Assicurativo.

Hai inserito correttamente tutti i dati necessari e a breve riceverai una e-mail con un link da convalidare per inviare i tuoi dati.
Affiliato
Anguillara Srls
Via Aloisio, 4 00061 Anguillara Sabazia (RM)

Il nostro staff


  • Nicola Mazzone
    Affiliato

  • Catia Stancato
    Affiliata

  • Cornelia Irina Deaconu
    Coordinatrice

  • Alessio De Martinis
    Collaboratore

  • Marco Oliva
    Affiliato

  • Daniele Ricasoli
    Collaboratore
Via Aloisio, 4 00061 Anguillara Sabazia (RM)
Zona: Lago di Bracciano-Anguillara Sabazia
Mostra su mappa
Orari: dal lunedì al sabato 9.00-13.00 15.30-19:30
Affiliato
Anguillara Srls
Via Aloisio, 4 00061 Anguillara Sabazia (RM)

2026 Tecnocasa Franchising S.p.A. - P. IVA 08365160152 - Via Monte Bianco 60/A 20089 Rozzano (MI). Ogni agenzia ha un proprio titolare ed è autonoma. Privacy policy | Policy utilizzo | Cookie policy