Porzione di bifamiliare in vendita

Anguillara Sabazia, villa Via G. Matteotti
€ 279.000
Prezzo aggiornato
4 locali 4 locali
205 Mq 205 Mq
2 bagni 2 bagni

Porzione di bifamiliare in vendita

Anguillara Sabazia, villa Via G. Matteotti

Descrizione annuncio

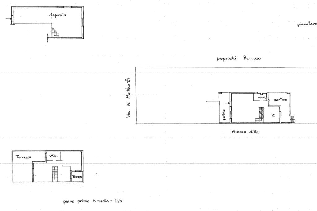
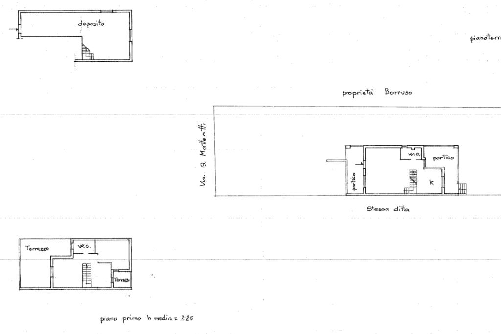
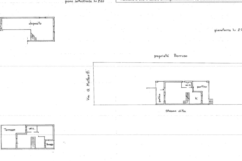
Villa bifamiliare di 205 mq con ampio giardino

La Tecnocasa di Anguillara S. Propone in vendita una splendida villa bifamiliare di 205 mq, circondata da un curato giardino privato di 450 mq, ideale per chi desidera vivere in un contesto tranquillo senza rinunciare alla comodità dei servizi.

L’abitazione si sviluppa su tre livelli:

Piano terra: ampio e luminoso salone, cucina abitabile con accesso diretto al portico coperto, perfetto per pranzi e cene all’aperto.

Piano primo: zona notte composta da tre camere da letto, bagno finestrato e terrazzi

Piano seminterrato: spaziosa sala hobby, ideale come taverna, palestra o spazio ricreativo.

Completano la proprietà un garage e un pozzo.

La villa si trova in una posizione strategica, a soli 500 metri dalla stazione ferroviaria, garantendo un facile collegamento con le principali città vicine.

Mostra tutto

Nelle vicinanze

Trasporto pubblico Trasporto pubblico
Anguillara
Anguillara
500 m
Stazione Cesano
Stazione Cesano
3,0 Km
Staz.ne Cesano
Staz.ne Cesano
3,0 Km
Scuole Scuole
Istituto Comprensivo “San Francesco” - Scuola primaria
380 m
Liceo Scientifico Statale Ignazio Vian
1,0 Km
Istituto Comprensivo “San Francesco”
2,4 Km
Scuola Primaria Anguillara Sabazia
2,7 Km
Farmacia Farmacia
Farmacia Dottor Firriolo
50 m
Farmacia comunale
1,7 Km
Farmacia De Cecco
2,7 Km
Supermercati Supermercati
Tuodì Superfresco
110 m
Maury's
300 m
Conad
360 m
Pewex
1,4 Km
Carrefour Market
2,7 Km
Negozi Negozi
Vapoforno Albanesi
50 m
Piazza Italia
260 m
Ovs Kids
290 m
O-zone Shop
470 m
Metelko Sport
910 m
Bar Bar
Toro Loco
2,0 Km
Ristoranti Ristoranti
Il quadrifoglio
220 m
Pizza House
870 m
Pizzeria Lucifero
1,7 Km
Boricella
2,7 Km
Al Tiglio
2,8 Km
Mostra tutto

Caratteristiche

Rif.:
61118371
Piano:
3 di 3 (Piano su più livelli)
Box:
1
Posti auto:
2
Balconi:
3
Terrazzi:
2
Mostra tutto
Prezzo Prezzo
€ 279.000
Rata mutuo Rata mutuo
€ 1.316 / mese
Spese annue Spese annue
€ 1
Proponi il tuo prezzoProponi il tuo prezzo

Classe Energetica

G
G
G
G
G
G
G
G
G
EP globale non rinnovabile:
175.00 kW h/m² anno
EP globale rinnovabile:
175.00 kW h/m² anno
Anno di costruzione:
1980
Riscaldamento:
Autonomo
Tipo impianto:
A radiatori
Tipo alimentazione:
Metano

Prezzo ridotto di €1 (7%%)

Ti interessa visionare l'immobile?

Fissa un appuntamento  Fissa un appuntamento

Richiedi informazioni

Clicca su Leggi per aprire l'informativa
* Questi campi sono obbligatori

Calcola il tuo mutuo

Semplice e senza impegno
Anticipo

( % )
Mutuo

( % )

pochi semplici passi

inserisci i tuoi dati
Questionario completato
Grazie per aver richiesto un appuntamento senza impegno con un nostro Consulente del Credito e Assicurativo.

Hai inserito correttamente tutti i dati necessari e a breve riceverai una e-mail con un link da convalidare per inviare i tuoi dati.
Affiliato
Anguillara Srls
Via Aloisio, 4 00061 Anguillara Sabazia (RM)

Il nostro staff


  • Nicola Mazzone
    Affiliato

  • Catia Stancato
    Affiliata

  • Cornelia Irina Deaconu
    Coordinatrice

  • Alessio De Martinis
    Collaboratore

  • Nicole Germai
    Collaboratrice

  • Marco Oliva
    Affiliato

  • Daniele Ricasoli
    Collaboratore
Via Aloisio, 4 00061 Anguillara Sabazia (RM)
Zona: Lago di Bracciano-Anguillara Sabazia
Mostra su mappa
Orari: dal lunedì al sabato 9.00-13.00 15.30-19:30
Affiliato
Anguillara Srls
Via Aloisio, 4 00061 Anguillara Sabazia (RM)

2025 Tecnocasa Franchising S.p.A. - P. IVA 08365160152 - Via Monte Bianco 60/A 20089 Rozzano (MI). Ogni agenzia ha un proprio titolare ed è autonoma. Privacy policy | Policy utilizzo | Cookie policy