Bifamiliare in vendita

Anguillara Sabazia, Via Augusto
€ 219.000
Prezzo aggiornato
7 locali 7 locali
220 Mq 220 Mq
3 bagni 3 bagni

Bifamiliare in vendita

Anguillara Sabazia, Via Augusto

Descrizione annuncio

Ad uso investimento, con rendita netta mensile di 1000 €, dovuta dai contratti di affitto di due inquilini, si propone in vendita una villa bifamiliare su tre livelli,

con una superficie totale di 220 mq, offre ambienti ben distribuiti e funzionali.

Piano Terra

Il piano terra dispone di un soggiorno spazioso e luminoso collegato a una cucina in open space che permette una disposizione fluida degli ambienti.

Dalla zona giorno si accede a un porticato coperto di 25 mq, ideale per pranzi all'aperto o per trascorrere momenti immersi nel verde del giardino.

Piano Primo

Al primo piano si trovano tre camere da letto ben esposte e confortevoli, progettate per offrire la massima privacy e tranquillità. Completa il livello un bagno con vasca.

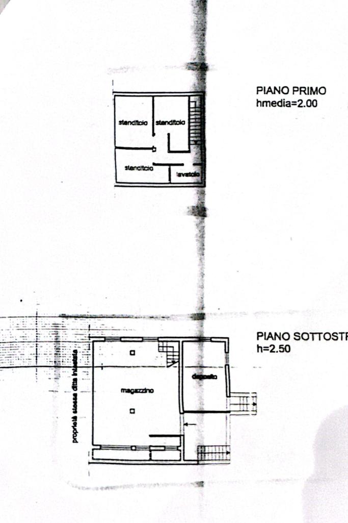
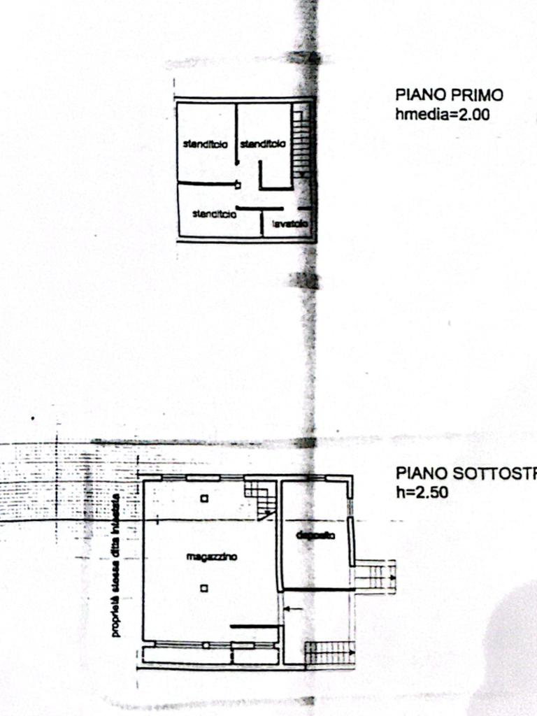
Piano Seminterrato

Il piano seminterrato ospita una sala hobby con possibilità di adattarla a diverse esigenze (studio, palestra, area giochi) e un bagno aggiuntivo, offrendo flessibilità per gli spazi di vita. È presente anche una zona magazzino attualmente allo stato grezzo, perfetta per essere utilizzata come deposito o trasformata in ulteriori spazi di servizio.

Esterni

L’abitazione gode di un giardino privato di 500 mq, un’oasi verde che circonda la villa e che offre uno spazio esterno fruibile per attività all'aperto, giardinaggio o relax. All'interno della proprietà è presente un posto auto.

Servizi e Caratteristiche Tecniche

La villa è dotata di doppio accesso indipendente, che garantisce privacy e facilità di accesso. Il sistema di riscaldamento e i servizi culinari sono alimentati a GPL, mentre l’acqua sanitaria viene riscaldata tramite una caldaia dedicata.

Questa villa si distingue per la disposizione su tre livelli, che la rende spaziosa e adatta a diverse esigenze abitative, con ampi spazi sia interni che esterni e un elevato livello di comfort



Mostra tutto

Nelle vicinanze

Trasporto pubblico Trasporto pubblico
Anguillara
Anguillara
390 m
Cesano di Roma
Cesano di Roma
2,7 Km
Anguillarese/ASL Casaccia
Anguillarese/ASL Casaccia
2,3 Km
Staz.ne Cesano
Staz.ne Cesano
2,7 Km
Scuole Scuole
Istituto Comprensivo “San Francesco” - Scuola primaria
570 m
Liceo Scientifico Statale Ignazio Vian
740 m
Istituto Comprensivo "Enzo Biagi" - Sede di Osteria Nuova
3,0 Km
Farmacia Farmacia
Farmacia Dottor Firriolo
910 m
Farmacia comunale
2,5 Km
Supermercati Supermercati
Maury's
630 m
Tuodì Superfresco
790 m
Conad
1,3 Km
Pewex
2,2 Km
Negozi Negozi
O-zone Shop
500 m
Piazza Italia
680 m
Ovs Kids
690 m
Vapoforno Albanesi
900 m
Metelko Sport
1,8 Km
Bar Bar
Toro Loco
2,7 Km
Ronchetti Tiziana
2,8 Km
Bar Carboni
2,9 Km
Ristoranti Ristoranti
Il quadrifoglio
730 m
Pizza House
1,7 Km
Pizzeria Lucifero
2,5 Km
Tre Esse
2,9 Km
Mostra tutto

Caratteristiche

Rif.:
60978763
Piano:
1 di 3 (Piano su più livelli)
Posti auto:
2
Balconi:
1
Camere da letto:
4
Arredamento:
Parziale
Mostra tutto
Prezzo Prezzo
€ 219.000
Rata mutuo Rata mutuo
€ 1.033 / mese
Spese annue Spese annue
€ 1
Proponi il tuo prezzoProponi il tuo prezzo

Classe Energetica

F
F
F
F
F
F
F
F
F
EP globale non rinnovabile:
175.00 kW h/m² anno
EP globale rinnovabile:
175.00 kW h/m² anno
EP invernale del fabbricato:
EP estiva del fabbricato:
Anno di costruzione:
2000
Riscaldamento:
Autonomo
Tipo impianto:
A radiatori
Tipo alimentazione:
GPL

Prezzo ridotto di €1 (9%%)

Ti interessa visionare l'immobile?

Fissa un appuntamento  Fissa un appuntamento

Richiedi informazioni

Clicca su Leggi per aprire l'informativa
* Questi campi sono obbligatori

Calcola il tuo mutuo

Semplice e senza impegno
Anticipo

( % )
Mutuo

( % )

pochi semplici passi

inserisci i tuoi dati
Questionario completato
Grazie per aver richiesto un appuntamento senza impegno con un nostro Consulente del Credito e Assicurativo.

Hai inserito correttamente tutti i dati necessari e a breve riceverai una e-mail con un link da convalidare per inviare i tuoi dati.
Affiliato
Anguillara Srls
Via Aloisio, 4 00061 Anguillara Sabazia (RM)

Il nostro staff


  • Nicola Mazzone
    Affiliato

  • Catia Stancato
    Affiliata

  • Cornelia Irina Deaconu
    Coordinatrice

  • Alessio De Martinis
    Collaboratore

  • Nicole Germai
    Collaboratrice

  • Marco Oliva
    Affiliato

  • Daniele Ricasoli
    Collaboratore
Via Aloisio, 4 00061 Anguillara Sabazia (RM)
Zona: Lago di Bracciano-Anguillara Sabazia
Mostra su mappa
Orari: dal lunedì al sabato 9.00-13.00 15.30-19:30
Affiliato
Anguillara Srls
Via Aloisio, 4 00061 Anguillara Sabazia (RM)

2025 Tecnocasa Franchising S.p.A. - P. IVA 08365160152 - Via Monte Bianco 60/A 20089 Rozzano (MI). Ogni agenzia ha un proprio titolare ed è autonoma. Privacy policy | Policy utilizzo | Cookie policy