Villa singola in vendita

Anguillara Sabazia, villa via lago di orta
€ 299.000
5 locali 5 locali
115 Mq 115 Mq
2 bagni 2 bagni

Villa singola in vendita

Anguillara Sabazia, villa via lago di orta

Descrizione annuncio

NUOVO CANTIERE 'LA TINNOSA'

Tre unità abitative singole con posto auto interno e giardini di varie metrature in base alla tipologia scelta;

Tutte le Ville Singole saranno di ultima generazione costruite in linea con le recenti normative per il risparmio energetico, dotate del massimo confort e tecnologie all'avanguardia, ambienti sofisticati ed eleganti, dove funzionalità e stile primeggiano. Il fabbricato raggiungerà la classe energetica A, grazie alle soluzioni costruttive adottate.

Impianto fotovoltaico, la possibilità di scegliere tra impianto Fan Coil o riscaldamento a pavimento con pompa di calore, pannello solare termico, caldaia a condensazione e cappotto termico.

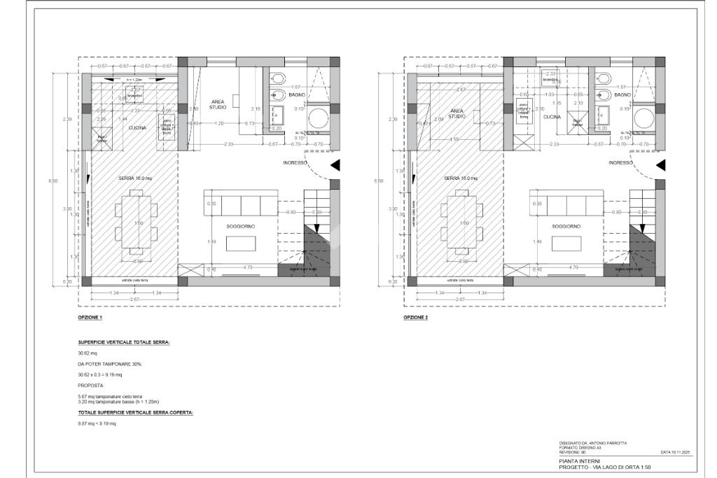
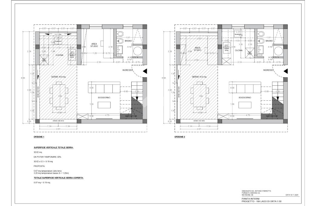
La soluzione ricopre una superficie di 115 mq commericiali, disposta su due piani con giardino perimetrale composta da: salone e serra bioclimatica con ampie vetrate che rendono la vita interna a contatto con il giardino a livello, angolo cottura di buona metratura per cucinare con comodità ed un bagno il tutto al piano terra; lo studio effettuato a livello architettonico, con lo strumento urbanistico ci ha permesso di avere una zona abitativa nel primo piano, con altezze comprese tra 3,07 mt altezza massima e 1,85 mt altezza minima; composta da una camera doppia con uscita sul terrazzo ed una camera singola sempre con uscita sul terrazzo, un bagno ed un vano di 6,5 mq a deposito da utilizzare in base alle proprie esigenze.

Per la prima proposta d'acquisto di prenotazione sarà possibile usufruire di un prezzario scontato per l'unità centrale. Per maggiori chiarimenti in merito e per organizzare una visita sul posto, contattateci e vi accompaganeremo dall'inizio fino alla consegna delle chiavi.

Specifichiamo che il prezzo di 299.000 è per la villa singola centrale

Mostra tutto

Nelle vicinanze

Trasporto pubblico Trasporto pubblico
Anguillara
Anguillara
1,6 Km
Anguillara Sabazia
2,1 Km
Scuole Scuole
Istituto Comprensivo “San Francesco”
1,3 Km
Istituto Comprensivo “San Francesco” - Scuola primaria
1,5 Km
Scuola Primaria Anguillara Sabazia
1,7 Km
Liceo Scientifico Statale Ignazio Vian
1,9 Km
Farmacia Farmacia
Farmacia comunale
760 m
Farmacia Dottor Firriolo
1,1 Km
Farmacia De Cecco
1,6 Km
Supermercati Supermercati
Pewex
300 m
Conad
820 m
Tuodì Superfresco
1,2 Km
Maury's
1,4 Km
Carrefour Market
1,6 Km
Negozi Negozi
Il Chicco d'oro
180 m
Metelko Sport
230 m
Vapoforno Albanesi
1,1 Km
Piazza Italia
1,3 Km
Ovs Kids
1,3 Km
Bar Bar
Toro Loco
1,1 Km
Ristoranti Ristoranti
Pizza House
290 m
Pizzeria Lucifero
780 m
Il quadrifoglio
1,3 Km
Boricella
1,6 Km
Al Tiglio
1,7 Km
Mostra tutto

Caratteristiche

Rif.:
60887614
Piano:
2 di 1 (Piano rialzato)
Posti auto:
1
Terrazzi:
1
Camere da letto:
2
Arredamento:
Assente
Mostra tutto
Prezzo Prezzo
€ 299.000
Rata mutuo Rata mutuo
€ 1.373 / mese
Spese annue Spese annue
€ 0
Proponi il tuo prezzoProponi il tuo prezzo

Classe Energetica

A4
A4
A4
A4
A4
A4
A4
A4
A4
EP invernale del fabbricato:
EP estiva del fabbricato:
Anno di costruzione:
2025
Riscaldamento:
Autonomo
Tipo impianto:
A pavimento
Tipo alimentazione:
Metano

Ti interessa visionare l'immobile?

Fissa un appuntamento  Fissa un appuntamento

Richiedi informazioni

* Questi campi sono obbligatori

Calcola il tuo mutuo

Semplice e senza impegno
Anticipo

( % )
Mutuo

( % )

pochi semplici passi

inserisci i tuoi dati
Questionario completato
Grazie per aver richiesto un appuntamento senza impegno con un nostro Consulente del Credito e Assicurativo.

Hai inserito correttamente tutti i dati necessari e a breve riceverai una e-mail con un link da convalidare per inviare i tuoi dati.
Affiliato
Anguillara Srls
Via Aloisio, 4 00061 Anguillara Sabazia (RM)

Il nostro staff


  • Nicola Mazzone
    Affiliato

  • Catia Stancato
    Affiliata

  • Cornelia Irina Deaconu
    Coordinatrice

  • Alessio De Martinis
    Collaboratore

  • Nicole Germai
    Collaboratrice

  • Marco Oliva
    Affiliato

  • Daniele Ricasoli
    Collaboratore

  • Andrea Ricasoli
    Collaboratore
Via Aloisio, 4 00061 Anguillara Sabazia (RM)
Zona: Lago di Bracciano-Anguillara Sabazia
Mostra su mappa
Orari: dal lunedì al sabato 9.00-13.00 15.30-19:30
Affiliato
Anguillara Srls
Via Aloisio, 4 00061 Anguillara Sabazia (RM)

2025 Tecnocasa Franchising S.p.A. - P. IVA 08365160152 - Via Monte Bianco 60/A 20089 Rozzano (MI). Ogni agenzia ha un proprio titolare ed è autonoma. Privacy policy | Policy utilizzo | Cookie policy