5 locali in vendita

Anguillara Sabazia, villa Via Luigi Petroselli
€ 279.000
5 locali 5 locali
180 Mq 180 Mq
3 bagni 3 bagni

5 locali in vendita

Anguillara Sabazia, villa Via Luigi Petroselli

Descrizione annuncio

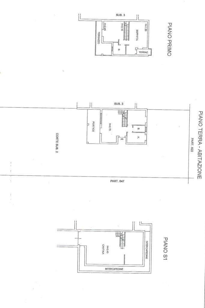
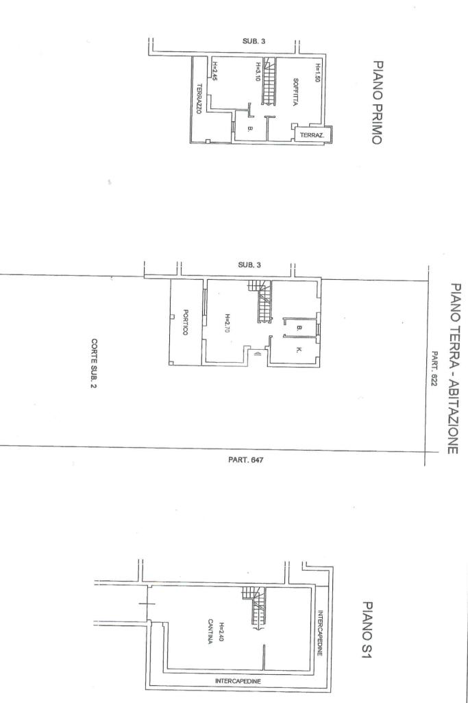
La Tecnocasa di Anguillara S. Propone in vendita villa bifamiliare di circa 220 mq, immersa nel verde e circondata da un giardino privato di circa 400 mq, ideale per chi desidera privacy, tranquillità e ampi spazi esterni. La proprietà è dotata di pozzo, perfetto per l’irrigazione del giardino.

L’abitazione si sviluppa su tre livelli:

Piano terra: ingresso su spazioso salone, luminoso e accogliente, cucina abitabile, camera matrimoniale e bagno, con ambienti ben distribuiti e funzionali.

Primo piano: zona notte composta da due camere di generose dimensioni, bagno e terrazzo perimetrale, ideale per momenti di relax all’aperto e con affacci sul verde circostante.

Piano seminterrato: ampio spazio adibito a sala hobby, perfetto come area ricreativa, palestra, studio o taverna.

La villa si distingue per la versatilità degli spazi interni ed esterni, risultando una soluzione ideale per famiglie o per chi cerca una residenza comoda, indipendente e a contatto con la natura.

Mostra tutto

Nelle vicinanze

Trasporto pubblico Trasporto pubblico
Anguillara
Anguillara
680 m
Cesano di Roma
Cesano di Roma
2,7 Km
Stazione Cesano
Stazione Cesano
2,6 Km
Staz.ne Cesano
Staz.ne Cesano
2,7 Km
Scuole Scuole
Istituto Comprensivo “San Francesco” - Scuola primaria
470 m
Liceo Scientifico Statale Ignazio Vian
1,4 Km
Istituto Comprensivo “San Francesco”
2,6 Km
Scuola Primaria Anguillara Sabazia
2,9 Km
Farmacia Farmacia
Farmacia Dottor Firriolo
470 m
Farmacia comunale
1,9 Km
Farmacia De Cecco
2,9 Km
Supermercati Supermercati
Conad
480 m
Tuodì Superfresco
500 m
Maury's
640 m
Pewex
1,5 Km
Carrefour Market
2,9 Km
Negozi Negozi
Vapoforno Albanesi
470 m
Piazza Italia
620 m
Ovs Kids
670 m
O-zone Shop
780 m
Metelko Sport
1,1 Km
Bar Bar
Toro Loco
2,2 Km
Ristoranti Ristoranti
Il quadrifoglio
590 m
Pizza House
1,1 Km
Pizzeria Lucifero
1,9 Km
Boricella
2,9 Km
Al Tiglio
2,9 Km
Mostra tutto

Caratteristiche

Rif.:
61152729
Piano:
3 di 3 (Piano su più livelli)
Posti auto:
2
Balconi:
1
Terrazzi:
1
Camere da letto:
3
Mostra tutto
Prezzo Prezzo
€ 279.000
Rata mutuo Rata mutuo
€ 1.315 / mese
Spese annue Spese annue
€ 1
Proponi il tuo prezzoProponi il tuo prezzo

Classe Energetica

G
G
G
G
G
G
G
G
G
Riscaldamento:
Autonomo
Tipo impianto:
A radiatori
Tipo alimentazione:
Metano

Ti interessa visionare l'immobile?

Fissa un appuntamento  Fissa un appuntamento

Richiedi informazioni

Clicca su Leggi per aprire l'informativa
* Questi campi sono obbligatori

Calcola il tuo mutuo

Semplice e senza impegno
Anticipo

( % )
Mutuo

( % )

pochi semplici passi

inserisci i tuoi dati
Questionario completato
Grazie per aver richiesto un appuntamento senza impegno con un nostro Consulente del Credito e Assicurativo.

Hai inserito correttamente tutti i dati necessari e a breve riceverai una e-mail con un link da convalidare per inviare i tuoi dati.
Affiliato
Anguillara Srls
Via Aloisio, 4 00061 Anguillara Sabazia (RM)

Il nostro staff


  • Nicola Mazzone
    Affiliato

  • Catia Stancato
    Affiliata

  • Cornelia Irina Deaconu
    Coordinatrice

  • Alessio De Martinis
    Collaboratore

  • Marco Oliva
    Affiliato

  • Daniele Ricasoli
    Collaboratore
Via Aloisio, 4 00061 Anguillara Sabazia (RM)
Zona: Lago di Bracciano-Anguillara Sabazia
Mostra su mappa
Orari: dal lunedì al sabato 9.00-13.00 15.30-19:30
Affiliato
Anguillara Srls
Via Aloisio, 4 00061 Anguillara Sabazia (RM)

2026 Tecnocasa Franchising S.p.A. - P. IVA 08365160152 - Via Monte Bianco 60/A 20089 Rozzano (MI). Ogni agenzia ha un proprio titolare ed è autonoma. Privacy policy | Policy utilizzo | Cookie policy